





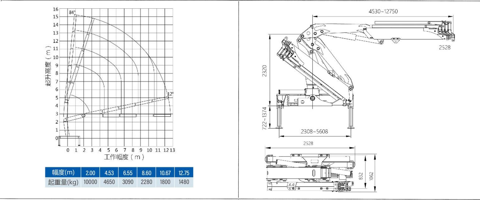
SQZ200
6
16-18
SQZ200
12.75(m)
3100(Kg):
The luffing mechanism adopts a linkage design, resulting in a compact structure and improved lifting torque.
The double-chamber, wide-span outrigger structure provides better operational stability.
a.can be customized boom section, an option 2-5;
b.crane color can be customized;
c. attachment can be added;



| Item | Unit | SQZ200 |
| Max lifting torque | kN•m | 210 |
| Max lifting capacity | kg | 10000 |
| Boom length | m | 12.75 |
| Lifting height | m | 15.3 |
| Slewing angle | ° | 360 |
| Outrigger span | mm | 5608 |
| Dead weight | Kg | 3100 |
| Item | Unit | Value |
| Rated hydraulic flow | L/min | 50 |
| Rated working pressure | Mpa | 30 |
| Recommend power | Kw | 28 |
| Hydraulic oil temperature | ° | -25 OC-+40 OC |
| Oil tank capacity | L | 160 |
