





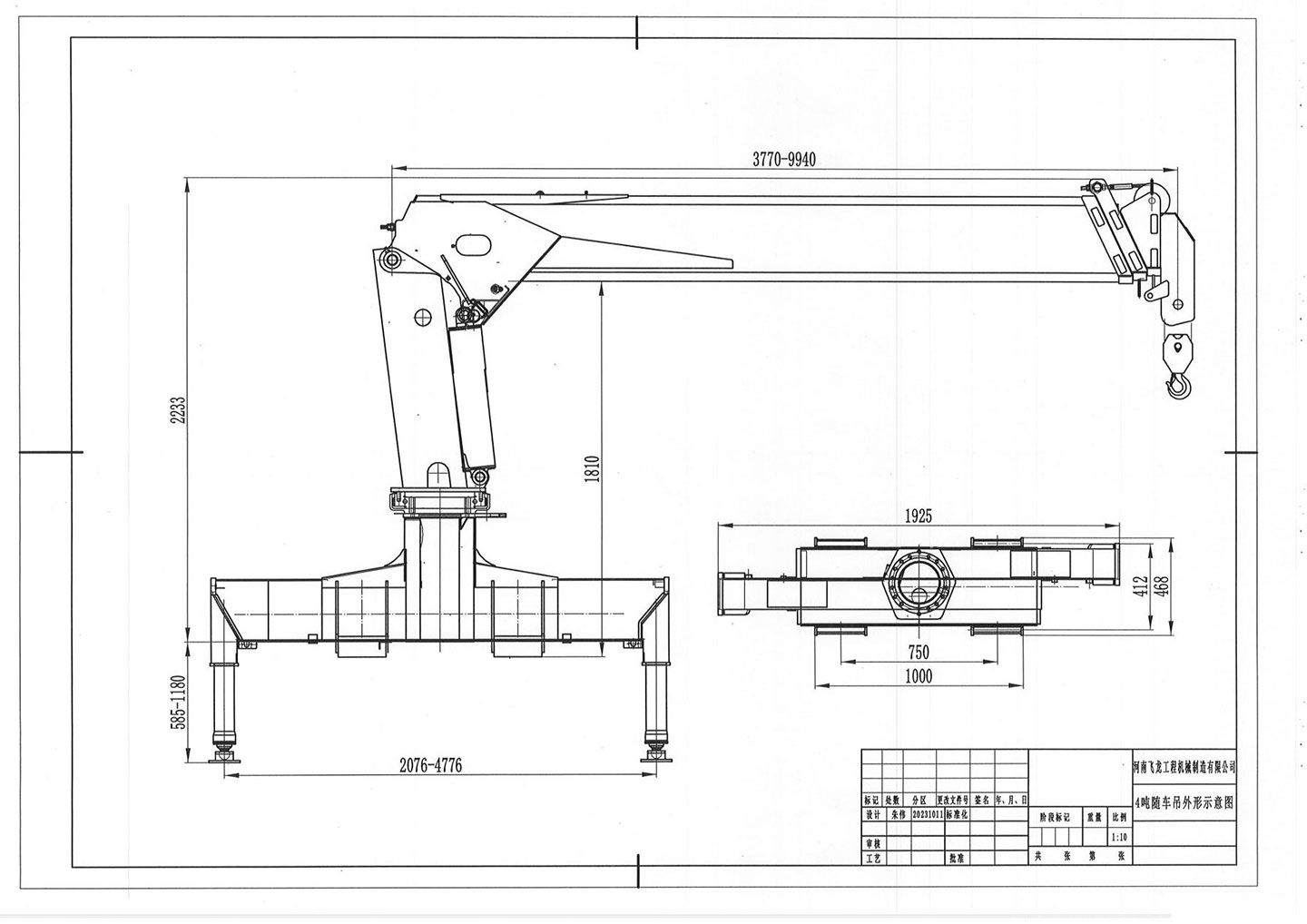
SQS100
4000kg
9.92m
SQS100
4000kg
9.92m
High strength plated use laser cutting machine, automatic clipper, advance CNC machine, ensure the quality and standard of each component.
Optimize hydraulic system, make operation smooth and efficient
Famous hydraulic parts make ever movement smoothly and precision,
Excellent workmanship good appearance, high density painted, prevent corrosion for seawater.
National hydraulic crane research center.hydraulic crane high-tech research and development;

|
ITEM |
SQS100 |
|
|
Brand |
XINFEIG |
|
|
Manufacture year |
2025 |
|
|
Rated lifting capacity |
kg |
4000 |
|
Max.load moment |
KN.m |
100 |
|
Max. Boom outreach |
m |
9.92 |
|
Slewing angle |
/ |
360° |
|
Boom raising angle |
/ |
0~80° |
|
Max.lifting height (the measurement from the ground after the outriggers fully extended) |
m |
12.2 |
|
Numbers of the boom |
4section |
|
|
Outrigger span (fully extended) |
mm |
4600 |
|
Operating position |
/ |
At ground |
|
Hydraulic system flow |
L/m |
50 |
|
Operation pressure |
Mpa |
20 |
|
Crane dead weight |
g |
1400 |
|
Recommend installation size |
600mm |
|
|
Operation method |
Remote control |
|
