





SQS125-5
5000kg
14.3m
SQS125-5
5000kg
14.3m
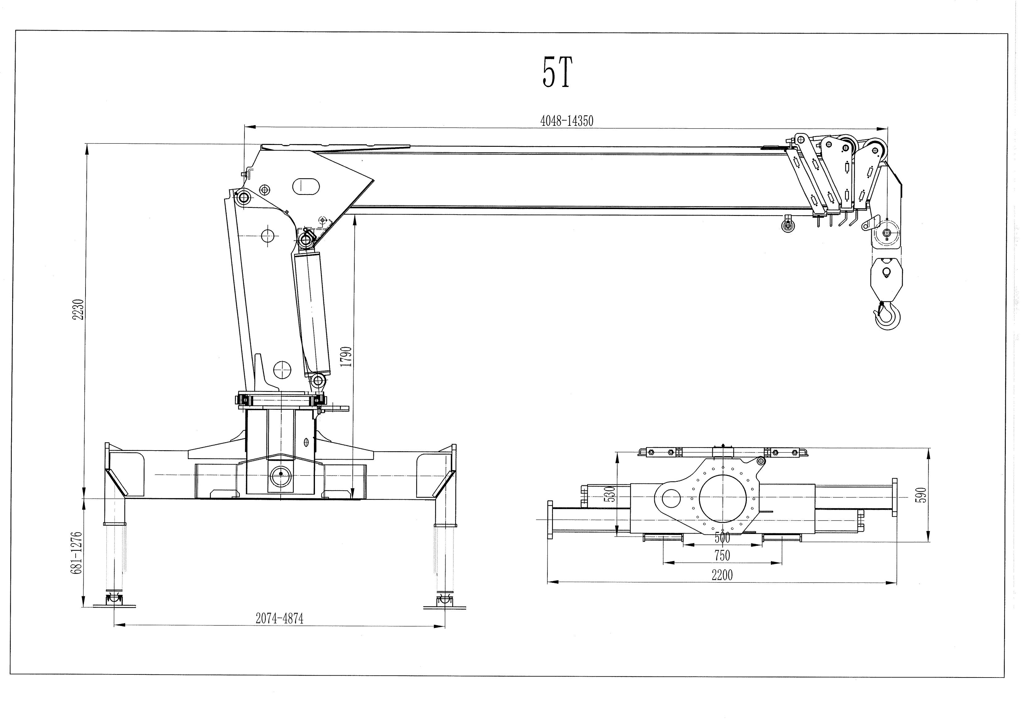
Boom Crane model: SQS125-5, 5Ton lifting capacity, 5-section straight boom crane, max. boom outreach is 14.3m, max. crane working height is 17.2m.
Worm turbo slewing reducer, large torque, ensure slewing smoothly and strong working ability, gear pump provide strong powerful resource.
hexagonal shape Boom section, 1 cylinder, 2 rope connection,reliable and efficient.
Used laser cutting machine, advanced CNC processing equipment, Auto robot welding precision bending machine, and automatic washing machine to ensure the quality and standards of each component.
Hydraulic systems adopt famous brands of hydraulic parts, comfortable and smooth operation, and long service life.
Flexible hoisting every owner has more steadfast economical and unhindered experience



| Crane | Crane model | SQS125-5 |
| Manufacture year | 2026 | |
| Rated lifting capacity | 5000kg | |
| Max. Boom outreach | 14.35m | |
| Max outreach lifting capacity | 350kg @14m | |
| Slewing angle(continuous) | 360° continuous | |
| Boom raising angle | 0~78° | |
| Max.lifting height (the measurement from the ground after the outriggers fully extended) | 17.2m | |
| Length of the basic boom | 4.048 m | |
| Numbers of the boom | 5 section | |
| Outrigger span (fully extended) | 4.874m | |
| Operating position | On the ground | |
| Recommend oil displacement | 63L/min |


