





SQS200
8t
18.7m
SQS200
8t
18.7m
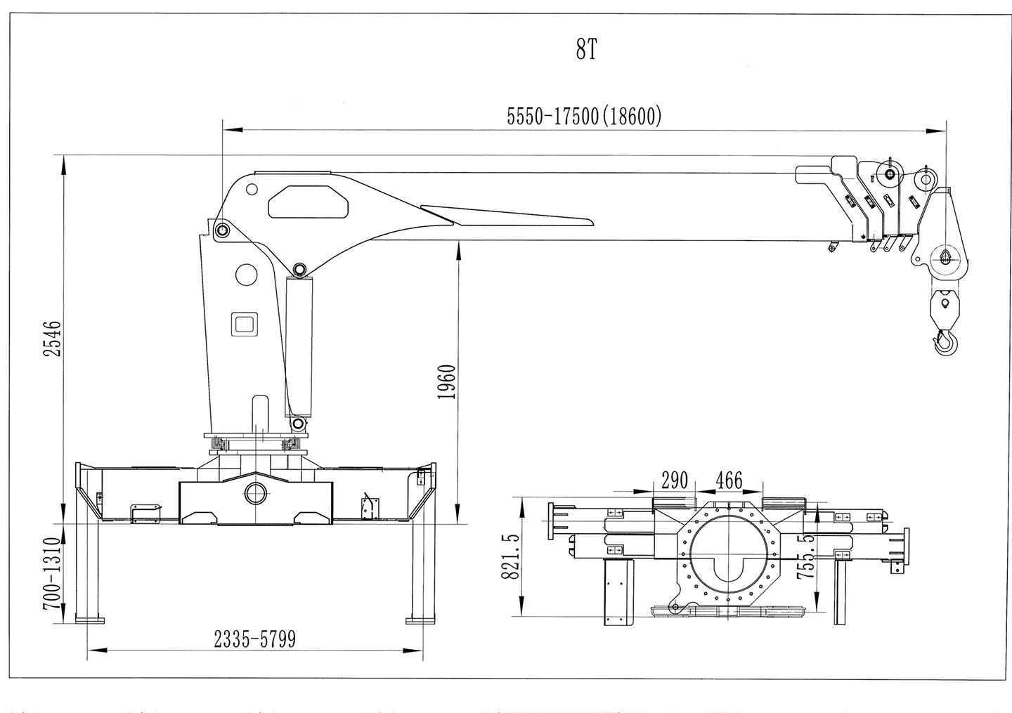
XINFEIG Crane model SQS200, crane lifting capacity 8Ton, 5-section straight boom crane, boom outreach is 18.7meters, max crane working height is 21meters.
Boom crane adopted planet slewing reducer, large torque, ensure slewing smoothly and strong working ability, double hydraulic gear pump, provide strong powerful resource.
First-line brand hydraulic components, longer service life, more efficient and convenient operation.
The large torque hydraulic motor the lifting speed is fast, and the lifting capacity is strong.




| No | Item | Specification | ||
| 1 | Basic parameter | Maximum rated lifting torque (tm) | 20 | |
| Maximum rated lifting capacity (t) | 8 | |||
| Maximum lifting height (m) | 21 | |||
| Maximum operating radius (m) | 18.7 | |||
| Mounting space (m) | 0.9 | |||
| 2 | Boom system |
Boom form | Loweroctagon | |
| Length of boom | Shrinkage (m) | 5.5 | ||
| Elongation (m) | 18.6 | |||
| 3 | Lifting system |
Lifting form | Hydraulic motor drives speed reducer |
|
| Tension of single wire rope (KN) | 88 | |||
| Winding speed | Rope speed (m/min) | 90 | ||
| Hook speed (m/min) | 22.5(4 multiplying power) | |||
| Hook capacity (Kg) | 8000 | |||
| Wire rope specification | Φ11*100 | |||
| 4 | Rotation system | Rotation form | Hydraulic Motor Drive reducer | |
| Rotation range(°) | 360°endless | |||
| Rotation speed (r/min) | 0-2 | |||
| 5 | Stabilizer system | Stabilizer form (front and back) | Hydraulic drive | |
| Span of front stabilizers (m) | 5800 | |||
| Span of rear stabilizers (m) | / | |||
| 6 | Hydraulic system | Hydraulic pump form | Gear pump | |
| Rated working pressure (Mpa) | 25 | |||
| The rated working flow (L/min) | 40 | |||
| Hydraulic main control valve | On-off valve | |||
| Hydraulic cylinder (unit) | 1 | Boom telescopic cylinder | ||
| 1 | Boom lifting cylinder | |||
| 2 | Horizontal oil cylinder of stabilizer | |||
| 2 | Stabilizer vertical cylinder | |||
| The volume of hydraulic oil tank (L) | 140 | |||
| 7 | Safety device |
Holding valve | ||
| Check valves | ||||
| Over-winding alarm | ||||
| Lock pin of column | ||||
| Hook safety latch | ||||
| Level gauge | ||||
| Light | ||||
| Pressure gauge | ||||
| 8 | Option | Over winding stop | ||
| Moment limiter | ||||
| Rear stabilizer | ||||
