





SQS250
10t
0.9m
SQS250
10t
0.9m
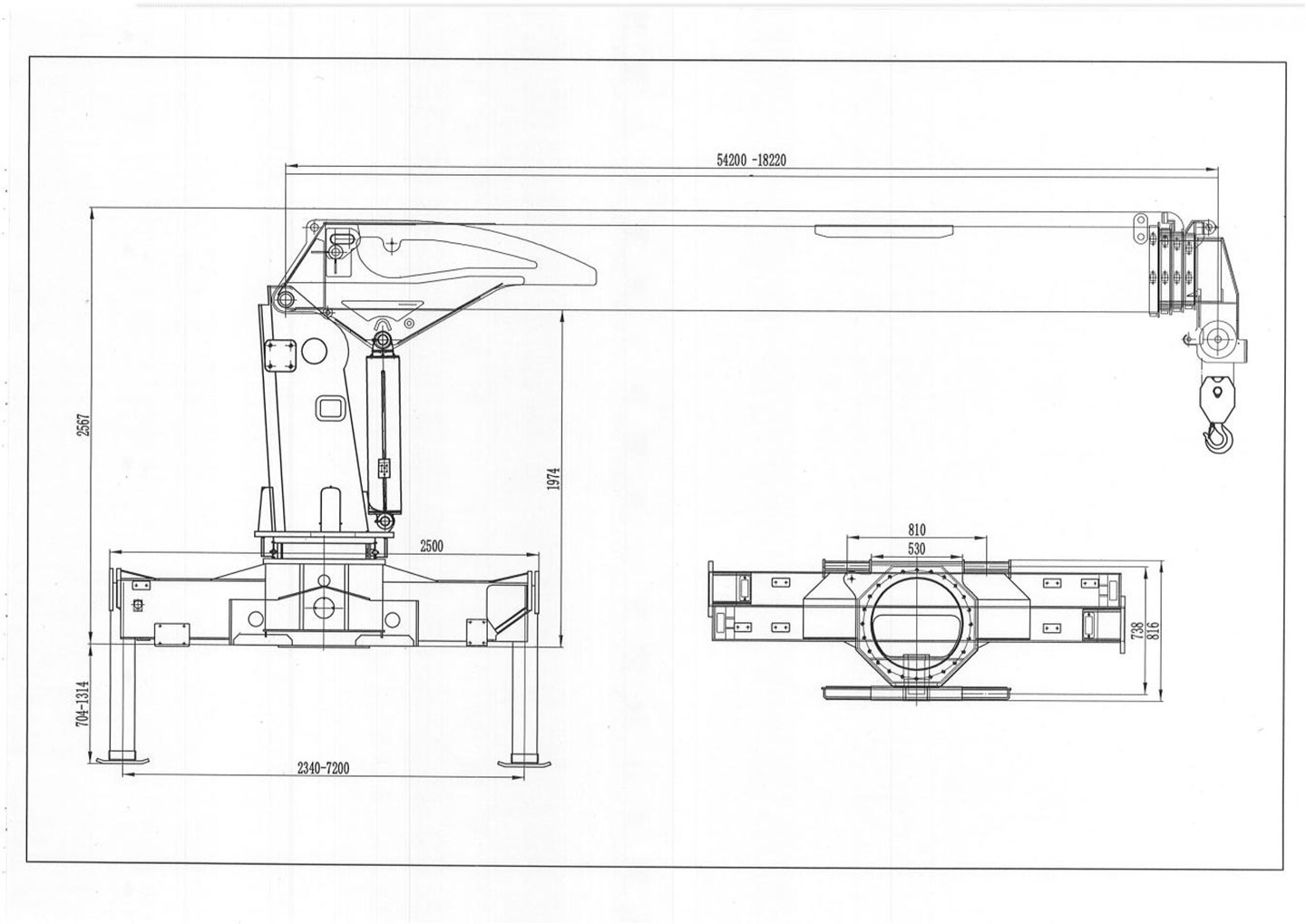
XINFEIG SQS250 5-section straight boom crane, crane lifting capacity is 10000Kg max boom outreach is 18.22m, max crane working height is 20.6m.
First-line brand hydraulic components, longer service life, more efficient and convenient operation.
The large torque hydraulic motor the lifting speed is fast, and the lifting capacity is strong.

| No | Item | Specification | ||
| 1 | Basic parameter | Maximum rated lifting torque (tm) | 22.5 | |
| Maximum rated lifting capacity (t) | 10 | |||
| Maximum lifting height (m) | 20.6 | |||
| Maximum operating radius (m) | 18.22 | |||
| Mounting space (m) | 0.9 | |||
| 2 | Boom system |
Boom form | U Shape | |
| Length of boom | Shrinkage (m) | 5.42 | ||
| Elongation (m) | 18.3 | |||
| 3 | Lifting system |
Lifting form | Hydraulic motor drives speed reducer |
|
| Tension of single wire rope (KN) | 88 | |||
| Winding speed | Rope speed (m/min) | 90 | ||
| Hook speed (m/min) | 22.5(4 multiplying power) | |||
| Hook capacity (Kg) | 10000 | |||
| Wire rope specification | Φ11*100 | |||
| 4 | Rotation system | Rotation form | Hydraulic Motor Drive reducer | |
| Rotation range(°) | 360°endless | |||
| Rotation speed (r/min) | 0-2 | |||
| 5 | Stabilizer system | Stabilizer form (front and back) | Hydraulic drive | |
| Span of front stabilizers (m) | 5800 | |||
| Span of rear stabilizers (m) | / | |||
| 6 | Hydraulic system | Hydraulic pump form | Gear pump | |
| Rated working pressure (Mpa) | 25 | |||
| The rated working flow (L/min) | 40 | |||
| Hydraulic main control valve | On-off valve | |||
| Hydraulic cylinder (unit) | 1 | Boom telescopic cylinder | ||
| 1 | Boom lifting cylinder | |||
| 2 | Horizontal oil cylinder of stabilizer | |||
| 2 | Stabilizer vertical cylinder | |||
| The volume of hydraulic oil tank (L) | 140 | |||
| 7 | Safety device |
Holding valve | ||
| Check valves | ||||
| Over-winding alarm | ||||
| Lock pin of column | ||||
| Hook safety latch | ||||
| Level gauge | ||||
| Light | ||||
| Pressure gauge | ||||
| 8 | Option | Over winding stop | ||
| Moment limiter | ||||
| Rear stabilizer | ||||
