





SQS350
16000kg
20m
SQS350
16000kg
20m
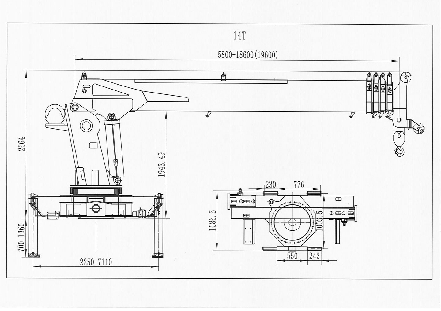
XINFEIG brand 16Ton 5-section straight boom crane,the crane Rated lifting capacity is 16Ton, max boom outreach is 19.8m, max crane working height is 23m.
Inside boom double extension cylinder, enhance heavy lifting performance, and working efficiency.
An option auxiliary winch, cabinet.

| Crane | Brand | XINFEIG |
| Crane model | SQS350 | |
| Manufacture year | 2026 | |
| Rated lifting capacity | 16000kg | |
| Max. Boom outreach | 20m | |
| Max outreach lifting capacity | 700kg @20m | |
| Slewing angle(continuous) | 360° continuous | |
| Boom raising angle | 0~78° | |
| Max.lifting height (the measurement from the ground after the outriggers fully extended) | 23m | |
| Length of the basic boom | 6.03 m | |
| Numbers of the boom | 5 section | |
| Outrigger span (fully extended) | 7.2m | |
| Front and rear leg | Double chamber hydraulic control | |
| Operating position | On board Top seat | |
| Recommend oil displacement | 40-100 L/min | |
| Crane dead weight | 6100Kg | |
| Installation size | 1200mm | |
| Crane warranty | 12 months | |
| Option | Auxiliary hook | Remote control |
